Einfamilienhaus
78187 Geisingen / Kirchen-Hausen
Fertigstellung: 1993
Bauherr: privat
Entwurf / Planung:
Prof. Günter Pfeifer
Talstraße 1a
79102 Freiburg
Team:
Peter M. Bährle
Shahriar Eetezadi
Thomas Heil
Roland Mayer
Objektüberwachung:
Dipl.-Ing. Albert Eisele
78073 Bad Dürrheim
Tragwerksplanung:
Greschik + Falk + Partner
79539 Lörrach / 10967 Berlin
Fotos: Francesca Giovanelli, CH- Birr
|
 |
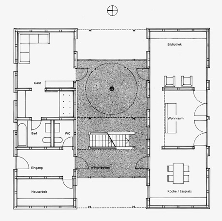
Ein Energiegarten als Zentrum und Mittelpunkt
des Hauses: Der nur einfach verglaste große
Zwischenraum zwischen zwei Holzhäusern lässt
sich, vorausgesetzt, man akzeptiert diverse
Temperaturunterschiede, das ganze Jahr über
nutzen. Der gesamte Raumbedarf für die vier-
köpfige Familie ist in den beiden schlanken Haus-
teilen untergebracht. Diese wurden in Holzfach-
werkbauweise errichtet. Der Energiegarten mit
Erschließungssteg und Treppe sowie die beiden
äußeren Balkone sind in einer einfachen Stahl-
konstruktion gefertigt. Lüftungsöffnungen an der
Traufseite sowie Kippflügel in den Giebeln sorgen
dafür, dass der sommerliche Wärmestau gut ab-
geführt werden kann. Die eigentliche Qualität die-
ses Haustyps liegt in der Gebrauchsfähigkeit und
der atmosphärischen Dichte des Energiegartens.
Zum Sichtschutz wurden in der Erdgeschosszone
zusätzlich weiße Klappladenelemente eingebaut.
Da diese in der Ebene der Außenwände liegen,
bildet sich eine weitere Vorzone, deren Wirkung
fernöstliche Assoziationen imaginiert.
In der Obergeschossebene erzeugen die beiden
Häuser mit den fast vollständig nach innen ge-
richteten Verglasungen und Fensteröffnungen
eine mehrfach verspiegelte Virtualität. Mit den
äußeren Bildern der Nachbarschaftsbezüge, den
Ausblicken in den Schwarzwald und den mehr-
fachen Verspiegelungen des Inneren wird eine
vielschichtige und großzügige Raumillusion her-
gestellt. Das Gebäude wurde mit einem Grau-
wasserkreislauf sowie einer kleinen Photovoltaik-
anlage ausgestattet.
|
 |
 |
 |
 |
 |