Sinotex Textilhandel
Verwaltungs- und Lagergebäude
Pasteurallee 1
79589 Binzen
Fertigstellung: 1999
Auftraggeber / Bauherr:
Sinotex Textilhandelsgesellschaft, CH-Zürich
Entwurf / Planung / Objektüberwachung:
Prof. Günter Pfeifer
Talstraße 1a
79102 Freiburg
mit Leo Frei Architekt ETH/SIA, Zürich
Team:
Marco Sedat
Martin Wolf
Tragwerksplanung
Greschik + Falk + Partner, Lörrach / Berlin
Energiekonzept
Delzer Kybernetik, Lörrach
Fotos: Francesca Giovanelli, CH-Birr
|
 |
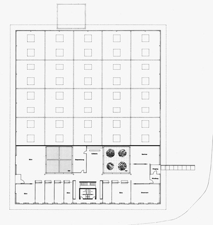
Hinter dem Firmennamen Sinotex verbirgt
sich eine Verteiler- und Lieferadresse
chinesischer Seidenwaren. Die fernöstliche
Anmutung dieses Gebäudes mit den hölzer-
nen Außenwänden, dem großen umlaufenden
Dachüberstand und den minimierten und
gezielt gesetzten Öffnungen entspringt jedoch
nicht nur einem formalen Konzept, sondern
ist Bestandteil einer kybernetischen Struktur.
Der Lagerraum, der nur über wenige Licht-
kuppeln belichtet wird, muss für eine kühle
und trockene Lagerung der Ware sorgen.
Dies wird gleichzeitig zum energetischen
Konzept, denn die große kühle Luftmenge
kann direkt in den Verwaltungs- und Arbeits-
räumen, die auf der Nordseite angesiedelt
sind, verwendet werden.Die Betonkonstruktion
des Souterraingeschosses wurde aus speziell
angefertigten gedämmten Fertigteilen herge-
stellt. Die darüber errichtete Stahlskelett-
Konstruktion wurde mit gedämmten Holz-
platten-Elementen ausgefacht. Zwei große
Innenhöfe belichten die Aufenthalts-, Verkaufs-
und Schulungsräume. Die sparsam gesetzten
fest verglasten Fensterelemente in der Nord-
Fassade werden mit einfachen Öffnungsflügeln
aus Holz ergänzt. Die Fenster zu den beiden
kargen Innenhöfen wurden mit teils fest-
stehenden, teils verschiebbaren Holzlamellen
ausgerüstet. Alle Holzteile sind in Lärchenholz
ausgeführt, die Böden der Verwaltungsräume
durchgehend mit dunklen großformatigen
Schieferplatten belegt.
|
> |
 |
 |
 |
 |
 |
 |