Seniorenwohnanlage
Gemmingergasse
74072 Heilbronn
Fertigstellung: 2000
Bauherr:
Stadtsiedlung Heilbronn GmbH
74072 Heilbronn
Entwurf / Planung:
Prof. Günter Pfeifer
Talstraße 1a
79102 Freiburg
Team:
Peter M. Bährle
Rainer Mayer
Objektüberwachung:
Bechler Krummlauf
74076 Heilbronn
Fotos: Francesca Giovanelli, CH-Birr
|
 |
Umgeben von Häusern der 50er und 60er
Jahre, der Aufbaujahre nach dem Krieg, gilt
es, einen neuen Impuls zu setzen. Die hohe
Ausnutzung des Grundstückes und die kräf-
tige Baumasse werden dadurch gerechtfer-
tigt, dass die damit gewonnene Wohnnutzung
an dieser Stelle die Innenstadtentwicklung be-
lebt und fördert. Als Nutzung ist altengerech-
tes Wohnen vorgesehen; die Bewohner sol-
len in das aktive Leben der Stadt eingebun-
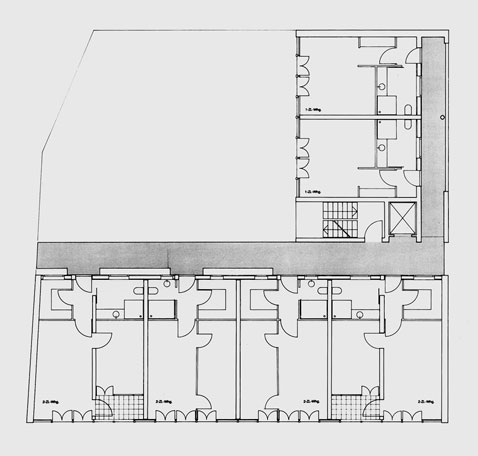
den sein. 22 Wohnungen mit einer Größe von
30 bis 65 qm, eine Begegnungsstätte im Erd-
geschoss, sowie ein kleiner Außenbereich
bilden das Raumprogramm.
Alle Wohnungen liegen am Laubengang und
haben eine eigene Haustür; das schafft Iden-
tität. Bis auf zwei Wohnungen im Erdgeschoss
sind alle Wohnungen barrierefrei. Die Fenster
sind in allen Räumen in Lärchenholz ausge-
führt und reichen bis zum Boden, ähnlich einer
Loggia. So werden die kleinen Wohnungen
Teil des Stadtraumes.
Durch die zweite Fassade kann der warme
Sommerregen auch bei offenem Fenster ge-
nossen werden. Während in der kalten Jahres-
zeit das Luftpolster für zusätzliche Energiege-
winnung sorgt, garantiert es in der warmen
Jahreszeit durch die entstehende Thermik
eine Kühlung der Fassade.
Wenn es in der Stadt laut wird, schaffen die
beiden Fassaden Stille in den Räumen. Die
Materialien sind Beton, Holz und Glas, jedes
Teil pur in seiner Materialität.
|
 |
 |
 |
 |
 |
 |
 |
 |