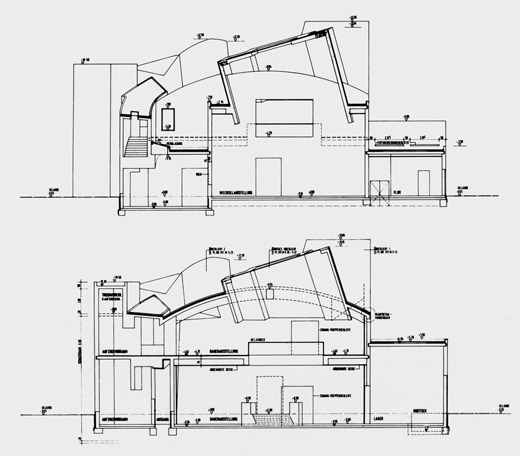
Im Jahre 1987 beauftragt die Firma Vitra,
Weil am Rhein, den amerikanischen Archi-
tekten Frank O. Gehry mit dem Entwurf
des Stuhlmuseums und einer Möbelpro-
duktionshalle. Es ist Frank Gehrys erster
in Europa realisierter Entwurf. Der skulp-
turalen Ausformung der Raumidee liegt
eine einfache Strategie zugrunde. Drei
große Raumvolumen werden mit unter-
schiedlichen Dachformen zueinander und
mit Öffnungen untereinander verknüpft.
Die einfache Grundrissfiguration wird über
Clip-on-Elemente wie Treppen, Aufzug,
Oberlichter, Eingangsdach und Windfang
zu einer komplexen Raum- und Volumen-
collage. Die Beschränkung auf wenige
Materialien und die Verwendung von "Non-
Details" prägen das Bauwerk und lassen
Raum- und Lichtspiel ausreichend Gelegen-
heit, die vielfältigen Verknüpfungen erlebbar
zu machen. Die Außendarstellung spricht
die gleiche Sprache. Lediglich die Art der
Blechverkleidungen deutet auf Widerspen-
stiges und Widersprüchliches hin. Die Mö-
belproduktionshalle folgt der gleichen Idee.
Die einfache Grundkonstruktion wird durch
die skulpturalen Ausformungen der Ein-
gänge ergänzt und korrespondiert so mit
dem Design Museum.





